Catalog
Catalog
Industrial equipment
High speed rolling doors
High-speed rolling gates of the SPEEDROLL SDI series

High-speed rolling gates of the SPEEDROLL SDI series

High-speed roll-up doors for indoor applications of SpeedRoll SDI series are designed to act as a barrier and to preserve controlled temperature in industrial and commercial premises, warehouses, and any other application where drafts and dust can be harmful to personnel.
Application:
Warehouse areas. Industrial facilities
High-speed rolling gates of the SPEEDROLL SDI series
High-speed rolling gates of the SPEEDROLL SDI series
Advantages
High speed door
High opening speed - up to 2.5 m/s.
Possibility of automation
Reliable automation.
Additional options
Possibility to instal additional equipment: photocells, key-buttons, heating systems for the drive and racks, etc.
Frost resistance
Stable operation at low temperatures.
High speed door
High opening speed - up to 2.5 m/s.
Possibility of automation
Reliable automation.
Additional options
Possibility to instal additional equipment: photocells, key-buttons, heating systems for the drive and racks, etc.
Frost resistance
Stable operation at low temperatures.
Design
Surface type
Doors frame colour
Curtain colour
Doors frame – zinc-coated steel, unpainted
Doors frame – zinc-coated steel, unpainted
Doors frame – ASIS 304 stainless steel
Doors frame – ASIS 304 stainless steel
RAL 9010 Pure white
RAL 9010 Pure white
RAL 5002 Ultramarine blue
RAL 5002 Ultramarine blue
RAL 6026 Opal green
RAL 6026 Opal green
RAL 9006 White aluminium
RAL 9006 White aluminium
RAL 1003 Signal yellow
RAL 1003 Signal yellow
RAL 3002 Carmine red
RAL 3002 Carmine red
RAL 2004 Pure orange
RAL 2004 Pure orange
RAL 9010 Pure white
RAL 9010 Pure white
RAL 5002 Ultramarine blue
RAL 5002 Ultramarine blue
RAL 6026 Opal green
RAL 6026 Opal green
RAL 9006 White aluminium
RAL 9006 White aluminium
RAL 1003 Signal yellow
RAL 1003 Signal yellow
RAL 3002  Carmine red
RAL 3002 Carmine red
RAL 2004  Pure orange
RAL 2004 Pure orange
Equipment
Standard
Optional
Tracks and track covers made of zinc-coated steel

Tracks and track covers made of zinc-coated steel

Zinc-coated shaft, diameter 90/130 mm

Zinc-coated shaft, diameter 90/130 mm

Guide rails — extruded polyethylene

Guide rails — extruded polyethylene

Door curtain — nontransparent reinforced PVC with density of 900–1 200 g/sqm

Door curtain — nontransparent reinforced PVC with density of 900–1 200 g/sqm

Control unit — painted steel body 300 х 400 х 150 mm; protection class — IP54; with frequency converter

Control unit — painted steel body 300 х 400 х 150 mm; protection class — IP54; with frequency converter

Photocells are installed at 500 mm above the floor level, and at the top of side tracks to detect incorrect unwinding of the curtain

Photocells are installed at 500 mm above the floor level, and at the top of side tracks to detect incorrect unwinding of the curtain

Tracks and track covers made of stainless steel AISI304, AISI316

Tracks and track covers made of stainless steel AISI304, AISI316

Control unit body made of stainless steel AISI304

Control unit body made of stainless steel AISI304

Heating of the drive and tracks

Heating of the drive and tracks

If the sensitive lower edge touches an obstruction when the door is closing, then a signal is transmitted to the control unit to open the door. In case of power outage the door opens automatically with a counterweight

If the sensitive lower edge touches an obstruction when the door is closing, then a signal is transmitted to the control unit to open the door. In case of power outage the door opens automatically with a counterweight

Technical description
Size Table
Construction
Standard Construction
Specifications
Operating Conditions
Packaging
Parameters
Value
Opening width, mm
from 2 000 to 5 700
Opening height, mm
from 1 800 to 5 800
Headroom, mm
from 600
Sideroom clearance, mm
from 225 to 475
  1. Electric drive
  2. Shaft
  3. Shaft box
  4. Door curtain
  5. Transparent insert (window/panel)
  6. Vertical track
  7. Guide
  8. Curtain bottom edge
  9. Photoelectric cell
  10. Control unit
  11. Counterbalance

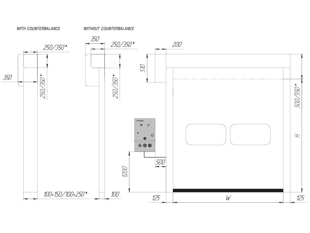
Side drive (with counterbalance/without counterbalance)

Side drive (with counterbalance/without counterbalance)

Symbol, parameter name Calculation formula
H, mm Opening height from 1 800 to 5 800
B, mm Opening width from 2 000 to 5 700
Front drive (with counterbalance/without counterbalance)

Front drive (with counterbalance/without counterbalance)

Symbol, parameter name Calculation formula
H, mm Opening height from 1 800 to 5 800
B, mm Opening width from 2 000 to 5 700
Parameter Value Notes
Wind load, Pa CLASS1 for doors up to 7 000 mm wide
Wind load, Pa CLASS2 for a 4 000 mm wide door
Opening speed, m/s 2,0 for doors up to 3 000 х 3 000 mm
Opening speed, m/s 1,8 for doors up to 5 000 х 5 000 mm
Opening speed, m/s 1,0 for doors up to 7 000 х 6 000 mm
Closing speed, m/s 0,8
Operating temperature range, °С from -15 to +70 if the drive is installed inside the premise
Operating temperature range, °С from -5 to +70 if the drive is installed outside the premise
Operating temperature range, °С from -35 to +70 with the heating system for tracks and drive
Power, W 1 500
IP protection class 54 end positions are monitored by an encoder
Supply voltage, V 220 V / 50 Hz single-phase
Supply voltage, V 380 V / 50 Hz triphase
Number of cycles 1 500 000 depends on operating conditions

Carry out regular maintenance of high-speed doors to ensure their smooth and safe operation.

Manual closing and opening of the doors is carried out with a hand crank.

Don’t strike the door curtain or obstruct its movement.

Keep the rails clean.

Never stay or cross an opening under a moving door curtain as it may cause serious injury.

Keep the door opening clear of any objects during door closing or opening.

Packing in wood Packaging features
Contents bubble wrap, foam, wooden pallet, wooden bars
Length, mm depends on door parts length
Width, mm from 640 to 705
Height, mm from 480 to 730
Additional Information print

All the DoorHan products are loaded with hydraulic crane or fork-lift truck with 2 m long forks. Customer or installer is recommended to use similar equipment. Truck fork should go under the wooden pallet, provided by the customer, and protrude from its other side. When lifting with crane or other lifting equipment use slings of corresponding lifting capacity.

Installation
Mounting Options
Checking Dimensional Details
Overhead mounting
Overhead mounting
  1. All the necessary measurements are taken inside the premises. Every dimension should be taken at least in three points:
  2. H — opening height (distance from floor to opening top);
  3. W – opening width (distance between left and right side of the opening).
  4. When measuring Н and W the largest figure is taken for final dimension.
Documentation
Manuals

High-speed roll-up door of SpeedRoll SDI series (for indoor applications)

Warranty print

DoorHan warrants the high-speed doors to operate properly for a period of 1 year from purchase date for retail orders, and for a period of 2 years from purchase date for dealer orders.

New Products
DoorHan drive (220/380 V)

DoorHan drive (220/380 V)

Design
Surface type
Doors frame – zinc-coated steel, unpainted
Doors frame – zinc-coated steel, unpainted
Doors frame – ASIS 304 stainless steel
Doors frame – ASIS 304 stainless steel
Doors frame colour
RAL 9010 Pure white
RAL 9010 Pure white
RAL 5002 Ultramarine blue
RAL 5002 Ultramarine blue
RAL 6026 Opal green
RAL 6026 Opal green
RAL 9006 White aluminium
RAL 9006 White aluminium
RAL 1003 Signal yellow
RAL 1003 Signal yellow
RAL 3002 Carmine red
RAL 3002 Carmine red
RAL 2004 Pure orange
RAL 2004 Pure orange
Curtain colour
RAL 9010 Pure white
RAL 9010 Pure white
RAL 5002 Ultramarine blue
RAL 5002 Ultramarine blue
RAL 6026 Opal green
RAL 6026 Opal green
RAL 9006 White aluminium
RAL 9006 White aluminium
RAL 1003 Signal yellow
RAL 1003 Signal yellow
RAL 3002  Carmine red
RAL 3002 Carmine red
RAL 2004  Pure orange
RAL 2004 Pure orange
Equipment
Standard
Tracks and track covers made of zinc-coated steel

Tracks and track covers made of zinc-coated steel

Zinc-coated shaft, diameter 90/130 mm

Zinc-coated shaft, diameter 90/130 mm

Guide rails — extruded polyethylene

Guide rails — extruded polyethylene

Door curtain — nontransparent reinforced PVC with density of 900–1 200 g/sqm

Door curtain — nontransparent reinforced PVC with density of 900–1 200 g/sqm

Control unit — painted steel body 300 х 400 х 150 mm; protection class — IP54; with frequency converter

Control unit — painted steel body 300 х 400 х 150 mm; protection class — IP54; with frequency converter

Photocells are installed at 500 mm above the floor level, and at the top of side tracks to detect incorrect unwinding of the curtain

Photocells are installed at 500 mm above the floor level, and at the top of side tracks to detect incorrect unwinding of the curtain

Optional
Tracks and track covers made of stainless steel AISI304, AISI316

Tracks and track covers made of stainless steel AISI304, AISI316

Control unit body made of stainless steel AISI304

Control unit body made of stainless steel AISI304

Heating of the drive and tracks

Heating of the drive and tracks

If the sensitive lower edge touches an obstruction when the door is closing, then a signal is transmitted to the control unit to open the door. In case of power outage the door opens automatically with a counterweight

If the sensitive lower edge touches an obstruction when the door is closing, then a signal is transmitted to the control unit to open the door. In case of power outage the door opens automatically with a counterweight

Technical description
Size Table
Parameters
Value
Opening width, mm
from 2 000 to 5 700
Opening height, mm
from 1 800 to 5 800
Headroom, mm
from 600
Sideroom clearance, mm
from 225 to 475
Construction
  1. Electric drive
  2. Shaft
  3. Shaft box
  4. Door curtain
  5. Transparent insert (window/panel)
  6. Vertical track
  7. Guide
  8. Curtain bottom edge
  9. Photoelectric cell
  10. Control unit
  11. Counterbalance
Standard Construction

Side drive (with counterbalance/without counterbalance)

Side drive (with counterbalance/without counterbalance)

Symbol, parameter name Calculation formula
H, mm Opening height from 1 800 to 5 800
B, mm Opening width from 2 000 to 5 700
Front drive (with counterbalance/without counterbalance)

Front drive (with counterbalance/without counterbalance)

Symbol, parameter name Calculation formula
H, mm Opening height from 1 800 to 5 800
B, mm Opening width from 2 000 to 5 700
Specifications
Parameter Value Notes
Wind load, Pa CLASS1 for doors up to 7 000 mm wide
Wind load, Pa CLASS2 for a 4 000 mm wide door
Opening speed, m/s 2,0 for doors up to 3 000 х 3 000 mm
Opening speed, m/s 1,8 for doors up to 5 000 х 5 000 mm
Opening speed, m/s 1,0 for doors up to 7 000 х 6 000 mm
Closing speed, m/s 0,8
Operating temperature range, °С from -15 to +70 if the drive is installed inside the premise
Operating temperature range, °С from -5 to +70 if the drive is installed outside the premise
Operating temperature range, °С from -35 to +70 with the heating system for tracks and drive
Power, W 1 500
IP protection class 54 end positions are monitored by an encoder
Supply voltage, V 220 V / 50 Hz single-phase
Supply voltage, V 380 V / 50 Hz triphase
Number of cycles 1 500 000 depends on operating conditions
Operating Conditions

Carry out regular maintenance of high-speed doors to ensure their smooth and safe operation.

Manual closing and opening of the doors is carried out with a hand crank.

Don’t strike the door curtain or obstruct its movement.

Keep the rails clean.

Never stay or cross an opening under a moving door curtain as it may cause serious injury.

Keep the door opening clear of any objects during door closing or opening.

Packaging
Packing in wood Packaging features
Contents bubble wrap, foam, wooden pallet, wooden bars
Length, mm depends on door parts length
Width, mm from 640 to 705
Height, mm from 480 to 730
Additional Information

All the DoorHan products are loaded with hydraulic crane or fork-lift truck with 2 m long forks. Customer or installer is recommended to use similar equipment. Truck fork should go under the wooden pallet, provided by the customer, and protrude from its other side. When lifting with crane or other lifting equipment use slings of corresponding lifting capacity.

Installation
Mounting Options
Overhead mounting
Overhead mounting
Checking Dimensional Details
  1. All the necessary measurements are taken inside the premises. Every dimension should be taken at least in three points:
  2. H — opening height (distance from floor to opening top);
  3. W – opening width (distance between left and right side of the opening).
  4. When measuring Н and W the largest figure is taken for final dimension.
Warranty

DoorHan warrants the high-speed doors to operate properly for a period of 1 year from purchase date for retail orders, and for a period of 2 years from purchase date for dealer orders.

Documentation
Manuals

High-speed roll-up door of SpeedRoll SDI series (for indoor applications)

Checkout
Managers of the company will answer all
questions by phone: