Catalog
Catalog
工业设备
高速快卷门
高速快卷门系列 SPEEDROLL SDO(中国)

高速快卷门系列 SPEEDROLL SDO(中国)

SPEEDROLL SDO 系列高速快卷门适用于安装在各种用途的场所(工业、仓库、商业等)的外部洞口,以实现隔离和保持室内微气候。
应用范围:
仓库综合体
工业设施
高速快卷门系列 SPEEDROLL SDO(中国)
优势
高速门
开门速度高达 2.0 米/秒。
自动化能力
采用自主研发的可靠自动化系统。
附加选项
可安装多种附加设备:红外线光电传感器、钥匙按钮、驱动和立柱加热系统等。
耐寒性
在极低温度下仍能稳定运行。
扩展的基础配置
基础配置中包含全面的安全设备。
高速门
开门速度高达 2.0 米/秒。
自动化能力
采用自主研发的可靠自动化系统。
附加选项
可安装多种附加设备:红外线光电传感器、钥匙按钮、驱动和立柱加热系统等。
耐寒性
在极低温度下仍能稳定运行。
扩展的基础配置
基础配置中包含全面的安全设备。
设计
表面类型
框架颜色
门板颜色
镀锌钢制门框
镀锌钢制门框
RAL 9003(白色)
RAL 9003(白色)
RAL 9006(银色)
RAL 9006(银色)
RAL 9005(黑色)
RAL 9005(黑色)
RAL 1013(珍珠白)
RAL 1013(珍珠白)
RAL 6005(绿色)
RAL 6005(绿色)
RAL 8017(棕色)
RAL 8017(棕色)
RAL 3005(红色)
RAL 3005(红色)
RAL 5005(蓝色)
RAL 5005(蓝色)
RAL 7038(灰色)
RAL 7038(灰色)
RAL 9010(白色)
RAL 9010(白色)
RAL 5002(蓝色)
RAL 5002(蓝色)
RAL 6026(绿色)
RAL 6026(绿色)
RAL 9006(银色)
RAL 9006(银色)
RAL 1003(黄色)
RAL 1003(黄色)
RAL 3002(红色)
RAL 3002(红色)
RAL 2004(橙色)
RAL 2004(橙色)
Equipment
基本配置
附加配置
立柱和箱体采用镀锌钢制成

立柱和箱体采用镀锌钢制成

卷轴采用直径90/130毫米的镀锌钢

卷轴采用直径90/130毫米的镀锌钢

导轨采用挤压成型聚乙烯

导轨采用挤压成型聚乙烯

门帘由不透明增强型PVC制成,密度为900–1200 g/m²

门帘由不透明增强型PVC制成,密度为900–1200 g/m²

控制箱采用喷涂钢壳,尺寸为250 × 450 × 150毫米;防护等级IP54;伺服电机控制箱

控制箱采用喷涂钢壳,尺寸为250 × 450 × 150毫米;防护等级IP54;伺服电机控制箱

红外线光电传感器安装在距地面500毫米的立柱内侧,同时另一对红外线光电传感器安装在侧立柱顶部,以检测门帘运行时的不正常展开情况

红外线光电传感器安装在距地面500毫米的立柱内侧,同时另一对红外线光电传感器安装在侧立柱顶部,以检测门帘运行时的不正常展开情况

外置光电传感器安装在立柱上,并配有信号灯(选配)

外置光电传感器安装在立柱上,并配有信号灯(选配)

控制箱外壳采用AISI304不锈钢

控制箱外壳采用AISI304不锈钢

驱动装置及立柱配备加热功能

驱动装置及立柱配备加热功能

关闭过程中,若门帘安全底边接触到障碍物,传感器通过无线信号向控制箱发送指令,自动开启门体;在断电情况下,门体可通过手动手柄手动开启

关闭过程中,若门帘安全底边接触到障碍物,传感器通过无线信号向控制箱发送指令,自动开启门体;在断电情况下,门体可通过手动手柄手动开启

Technical description
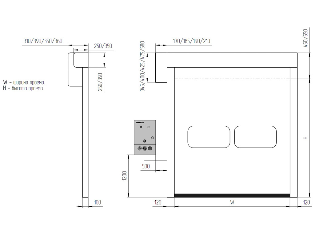
尺寸表
结构
标准结构方案
技术规格
产品使用条件
包装
参数
数值
洞口宽度
1,200 至 5,700
洞口高度
1,800 至 5,800
门楣空间
最小450
侧部空间
最小225
  1. 电动驱动装置
  2. 轴外罩
  3. 门帘
  4. 透明视窗
  5. 立柱
  6. 门帘运行导轨
  7. 门帘安全底边
  8. 红外线光电传感器
  9. 控制箱

侧置电机门的外观(左侧电机 / 右侧电机)

侧置电机门的外观(左侧电机 / 右侧电机)

简写符号, 参数名称 计算公式
B, 毫米门楣宽度 1,600 至 5,700
H, 毫米洞口高度 1,800 至 5,800
前置电机门的外观(左前置 / 右前置)

前置电机门的外观(左前置 / 右前置)

简写符号, 参数名称 计算公式
B, 毫米门楣宽度 1,600 至 5,700
H, 毫米洞口高度 1,800 至 5,800
参数 数值 备注
抗风等级,km/h CLASS3(≤120) 适用于门体尺寸不超过3 000 × 3 000 mm
抗风等级,km/h CLASS2(≤90) 适用于门体尺寸不超过5 000 × 5 000 mm
抗风等级,km/h CLASS1(≤82) 适用于门体尺寸不超过6 000 × 6 000 mm
开启速度,m/s 2,0 适用于门体尺寸不超过3 000 × 3 000 mm
开启速度,m/s 1,5 适用于门体尺寸不超过5 000 × 5 000 mm
开启速度,m/s 1,0 适用于门体尺寸不超过6 000 × 6 000 mm
关闭速度,m/s 0,5
工作温度范围,°C -30...+50 在使用立柱和驱动加热系统的情况下;在-16...-30 °C 的温度范围内运行时,门帘结构中无钢筋,且无法安装透明视窗;安全保护型材选项不可用
功率,W 1 500
IP防护等级 IP54 末端位置由编码器监控
电源电压,B 220伏/50赫兹 单相
电源电压,B 380伏/50赫兹 三相
无故障开启/关闭循环次数,不小于 1 500 000 取决于操作条件

SpeedRoll系列门的抗风能力是在门处于关闭状态下测得的。 此类门不适用于风荷载不稳定或较高的区域,这些风荷载可能由自然或人为因素引起,例如: - 位于海岸或山区的建筑物; - 具有多个进出口的多层加热地下停车场; - 配备强力进排风系统的工业设施; - 结构复杂、带有多个门洞的建筑物,可能产生强烈穿堂风的环境。 在上述一种或多种情况存在的情况下,建议使用SpeedFold系列快速堆积门或HSSD系列硬质快卷门。

为了确保门体的可靠性和无故障运行,建议定期进行技术检查和维护。

门的手动开启和关闭需使用手摇杆操作。

请勿撞击门体,并确保门体可自由开启和关闭。

请勿让PVC门帘导轨受到污染。

为了避免受伤,禁止在门开启或关闭过程中站在门洞内。

请确保在门体开启和关闭过程中,门洞内无任何异物。

对于安装在室外且使用环境温度低于-15°C的门,不建议使用带有透明窗的门帘。

门帘在导轨内的自恢复功能旨在应对意外碰撞事故,例如叉车误撞,而非为故意或频繁撞击门帘设计。 该功能依赖于门帘上安装的“拉链”结构,使其能够从塑料导轨中脱离并恢复正常运行。 但如果撞击力度超过门帘及系统组件的承受能力,则该功能可能无法正常工作,例如: • 车辆高速撞击门帘; • 锋利物体造成的冲击; • 叉车升起的货叉撞击门体上部等情况。

木质包装 包装特点
包装物 包装采用木条制成的木箱,组件之间垫有纸板,并用紧固带固定。
长度,mm 取决于门体组件的长度。
宽度,mm 640 至 705
高度,毫米 480 至 730
附加说明 print

DoorHan集团使用液压起重机或叉车(叉齿长度不少于2米)将门装载到货运车辆上。 购买者或安装人员需提供同等设备以搬运包装后的门体。 叉齿应插入制造商提供的木质托盘下方,并从另一侧伸出。 如使用起重机或其他提升设备,建议使用符合载重要求的吊装带。

Installation
安装方法
建筑工地准备
高速快卷门的安装
高速快卷门的安装
  1. 所有测量均在室内进行。每个尺寸的测量应至少在三个点进行(两端和中心位置)。
  2. B — 洞口宽度(从洞口左边缘到右边缘的距离)。
  3. H — 洞口高度(从地面到洞口顶部的距离)。
  4. h — 门楣高度(从洞口顶部到天花板的距离)。
  5. b1/b2 — 左/右侧距离(从洞口相应边缘到障碍物的距离)。
  6. 测量 H 和 B 时,以最大值为最终尺寸;测量 h、b1 和 b2 时,以最小值为最终尺寸。
Documentation
使用说明
证书和认证
图纸

高速快卷门 SPEEDROLL SDO(适用于室外使用)

GfA 控制单元

BMP 控制单元

DOORHAN 控制单元

DOORHAN SERVO 控制单元

合格证书(高速门)

高速快卷门产品合格证

合格证书(控制单元)

高速快卷门 SPEEDROLL SDO(侧置电机)

高速快卷门 SPEEDROLL SDO(前置电机)

高速快卷门 SPEEDROLL SDO(侧置电机)安装示意图

高速快卷门 SPEEDROLL SDO(前置电机)安装示意图

高速快卷门 SPEEDROLL SDO(侧置电机)搭配DOORHAN SERVO 1.5 kW自动控制系统

高速快卷门 SPEEDROLL SDO(侧置电机)搭配DOORHAN SERVO 1.5 kW自动控制系统安装示意图

保修义务 print

购买者可享受DoorHan集团生产的高速快卷门的质量保证,零售订单的保修期为1年,代理商订单的保修期为2年,自购买之日起计算。

新品
DoorHan 驱动装置(220/380 V)

DoorHan 驱动装置(220/380 V)

设计
表面类型
镀锌钢制门框
镀锌钢制门框
框架颜色
RAL 9003(白色)
RAL 9003(白色)
RAL 9006(银色)
RAL 9006(银色)
RAL 9005(黑色)
RAL 9005(黑色)
RAL 1013(珍珠白)
RAL 1013(珍珠白)
RAL 6005(绿色)
RAL 6005(绿色)
RAL 8017(棕色)
RAL 8017(棕色)
RAL 3005(红色)
RAL 3005(红色)
RAL 5005(蓝色)
RAL 5005(蓝色)
RAL 7038(灰色)
RAL 7038(灰色)
门板颜色
RAL 9010(白色)
RAL 9010(白色)
RAL 5002(蓝色)
RAL 5002(蓝色)
RAL 6026(绿色)
RAL 6026(绿色)
RAL 9006(银色)
RAL 9006(银色)
RAL 1003(黄色)
RAL 1003(黄色)
RAL 3002(红色)
RAL 3002(红色)
RAL 2004(橙色)
RAL 2004(橙色)
Equipment
基本配置
立柱和箱体采用镀锌钢制成

立柱和箱体采用镀锌钢制成

卷轴采用直径90/130毫米的镀锌钢

卷轴采用直径90/130毫米的镀锌钢

导轨采用挤压成型聚乙烯

导轨采用挤压成型聚乙烯

门帘由不透明增强型PVC制成,密度为900–1200 g/m²

门帘由不透明增强型PVC制成,密度为900–1200 g/m²

控制箱采用喷涂钢壳,尺寸为250 × 450 × 150毫米;防护等级IP54;伺服电机控制箱

控制箱采用喷涂钢壳,尺寸为250 × 450 × 150毫米;防护等级IP54;伺服电机控制箱

红外线光电传感器安装在距地面500毫米的立柱内侧,同时另一对红外线光电传感器安装在侧立柱顶部,以检测门帘运行时的不正常展开情况

红外线光电传感器安装在距地面500毫米的立柱内侧,同时另一对红外线光电传感器安装在侧立柱顶部,以检测门帘运行时的不正常展开情况

外置光电传感器安装在立柱上,并配有信号灯(选配)

外置光电传感器安装在立柱上,并配有信号灯(选配)

附加配置
控制箱外壳采用AISI304不锈钢

控制箱外壳采用AISI304不锈钢

驱动装置及立柱配备加热功能

驱动装置及立柱配备加热功能

关闭过程中,若门帘安全底边接触到障碍物,传感器通过无线信号向控制箱发送指令,自动开启门体;在断电情况下,门体可通过手动手柄手动开启

关闭过程中,若门帘安全底边接触到障碍物,传感器通过无线信号向控制箱发送指令,自动开启门体;在断电情况下,门体可通过手动手柄手动开启

Technical description
尺寸表
参数
数值
洞口宽度
1,200 至 5,700
洞口高度
1,800 至 5,800
门楣空间
最小450
侧部空间
最小225
结构
  1. 电动驱动装置
  2. 轴外罩
  3. 门帘
  4. 透明视窗
  5. 立柱
  6. 门帘运行导轨
  7. 门帘安全底边
  8. 红外线光电传感器
  9. 控制箱
标准结构方案

侧置电机门的外观(左侧电机 / 右侧电机)

侧置电机门的外观(左侧电机 / 右侧电机)

简写符号, 参数名称 计算公式
B, 毫米门楣宽度 1,600 至 5,700
H, 毫米洞口高度 1,800 至 5,800
前置电机门的外观(左前置 / 右前置)

前置电机门的外观(左前置 / 右前置)

简写符号, 参数名称 计算公式
B, 毫米门楣宽度 1,600 至 5,700
H, 毫米洞口高度 1,800 至 5,800
技术规格
参数 数值 备注
抗风等级,km/h CLASS3(≤120) 适用于门体尺寸不超过3 000 × 3 000 mm
抗风等级,km/h CLASS2(≤90) 适用于门体尺寸不超过5 000 × 5 000 mm
抗风等级,km/h CLASS1(≤82) 适用于门体尺寸不超过6 000 × 6 000 mm
开启速度,m/s 2,0 适用于门体尺寸不超过3 000 × 3 000 mm
开启速度,m/s 1,5 适用于门体尺寸不超过5 000 × 5 000 mm
开启速度,m/s 1,0 适用于门体尺寸不超过6 000 × 6 000 mm
关闭速度,m/s 0,5
工作温度范围,°C -30...+50 在使用立柱和驱动加热系统的情况下;在-16...-30 °C 的温度范围内运行时,门帘结构中无钢筋,且无法安装透明视窗;安全保护型材选项不可用
功率,W 1 500
IP防护等级 IP54 末端位置由编码器监控
电源电压,B 220伏/50赫兹 单相
电源电压,B 380伏/50赫兹 三相
无故障开启/关闭循环次数,不小于 1 500 000 取决于操作条件
产品使用条件

SpeedRoll系列门的抗风能力是在门处于关闭状态下测得的。 此类门不适用于风荷载不稳定或较高的区域,这些风荷载可能由自然或人为因素引起,例如: - 位于海岸或山区的建筑物; - 具有多个进出口的多层加热地下停车场; - 配备强力进排风系统的工业设施; - 结构复杂、带有多个门洞的建筑物,可能产生强烈穿堂风的环境。 在上述一种或多种情况存在的情况下,建议使用SpeedFold系列快速堆积门或HSSD系列硬质快卷门。

为了确保门体的可靠性和无故障运行,建议定期进行技术检查和维护。

门的手动开启和关闭需使用手摇杆操作。

请勿撞击门体,并确保门体可自由开启和关闭。

请勿让PVC门帘导轨受到污染。

为了避免受伤,禁止在门开启或关闭过程中站在门洞内。

请确保在门体开启和关闭过程中,门洞内无任何异物。

对于安装在室外且使用环境温度低于-15°C的门,不建议使用带有透明窗的门帘。

门帘在导轨内的自恢复功能旨在应对意外碰撞事故,例如叉车误撞,而非为故意或频繁撞击门帘设计。 该功能依赖于门帘上安装的“拉链”结构,使其能够从塑料导轨中脱离并恢复正常运行。 但如果撞击力度超过门帘及系统组件的承受能力,则该功能可能无法正常工作,例如: • 车辆高速撞击门帘; • 锋利物体造成的冲击; • 叉车升起的货叉撞击门体上部等情况。

包装
木质包装 包装特点
包装物 包装采用木条制成的木箱,组件之间垫有纸板,并用紧固带固定。
长度,mm 取决于门体组件的长度。
宽度,mm 640 至 705
高度,毫米 480 至 730
附加说明

DoorHan集团使用液压起重机或叉车(叉齿长度不少于2米)将门装载到货运车辆上。 购买者或安装人员需提供同等设备以搬运包装后的门体。 叉齿应插入制造商提供的木质托盘下方,并从另一侧伸出。 如使用起重机或其他提升设备,建议使用符合载重要求的吊装带。

Installation
安装方法
高速快卷门的安装
高速快卷门的安装
建筑工地准备
  1. 所有测量均在室内进行。每个尺寸的测量应至少在三个点进行(两端和中心位置)。
  2. B — 洞口宽度(从洞口左边缘到右边缘的距离)。
  3. H — 洞口高度(从地面到洞口顶部的距离)。
  4. h — 门楣高度(从洞口顶部到天花板的距离)。
  5. b1/b2 — 左/右侧距离(从洞口相应边缘到障碍物的距离)。
  6. 测量 H 和 B 时,以最大值为最终尺寸;测量 h、b1 和 b2 时,以最小值为最终尺寸。
保修义务

购买者可享受DoorHan集团生产的高速快卷门的质量保证,零售订单的保修期为1年,代理商订单的保修期为2年,自购买之日起计算。

Documentation
使用说明

高速快卷门 SPEEDROLL SDO(适用于室外使用)

GfA 控制单元

BMP 控制单元

DOORHAN 控制单元

DOORHAN SERVO 控制单元

证书和认证

合格证书(高速门)

高速快卷门产品合格证

合格证书(控制单元)

图纸

高速快卷门 SPEEDROLL SDO(侧置电机)

高速快卷门 SPEEDROLL SDO(前置电机)

高速快卷门 SPEEDROLL SDO(侧置电机)安装示意图

高速快卷门 SPEEDROLL SDO(前置电机)安装示意图

高速快卷门 SPEEDROLL SDO(侧置电机)搭配DOORHAN SERVO 1.5 kW自动控制系统

高速快卷门 SPEEDROLL SDO(侧置电机)搭配DOORHAN SERVO 1.5 kW自动控制系统安装示意图

结算
公司的经理将通过电话回答所有问题: