Catalog
Catalog
工业设备
高速快卷门
SPEEDROLL SDF 系列食品级快速门(中国)

SPEEDROLL SDF 系列食品级快速门(中国)

SPEEDROLL SDF 系列食品级快速门旨在隔离和保护食品级工业设施的室内环境。
应用范围:
仓储综合体。具有高卫生标准的场所
SPEEDROLL SDF 系列食品级快速门(中国)
优势
速度快
开启速度高 - 高达 2.0 米/秒。
耐腐蚀性能
支架和外壳由不锈钢制成。
自动化
自主研发的自动化设备 。
选配件
可安装各种附加设备:底部光电保护、按键开关、电机及轨道加热系统等
速度快
开启速度高 - 高达 2.0 米/秒。
耐腐蚀性能
支架和外壳由不锈钢制成。
自动化
自主研发的自动化设备 。
选配件
可安装各种附加设备:底部光电保护、按键开关、电机及轨道加热系统等
设计
不锈钢
门框/门颜色
门框由 AISI 304 不锈钢制成
门框由 AISI 304 不锈钢制成
RAL 9010 (白色)
RAL 9010 (白色)
RAL 5002 (蓝色)
RAL 5002 (蓝色)
RAL 6026 (绿色)
RAL 6026 (绿色)
RAL 9006 (银色)
RAL 9006 (银色)
RAL 1003 (黄色)
RAL 1003 (黄色)
RAL 3002 (红色)
RAL 3002 (红色)
RAL 2004 (橙色)
RAL 2004 (橙色)
Equipment
基本配置
附加配置
AISI304 不锈钢制成的支架和外罩

AISI304 不锈钢制成的支架和外罩

镀锌钢轴,直径 90/130 mm

镀锌钢轴,直径 90/130 mm

挤压聚乙烯导轨

挤压聚乙烯导轨

由密度为 900–1,200 克/平方米的不透明强化 PVC 制成的门帘

由密度为 900–1,200 克/平方米的不透明强化 PVC 制成的门帘

带变频器的控制单元位于控制箱内,300 × 400 × 150 mm;防护等级-IP54

带变频器的控制单元位于控制箱内,300 × 400 × 150 mm;防护等级-IP54

光眼安装在距离地面 500 毫米的高度,传感器位于侧柱顶部,用于检测门帘是否正常运行

光眼安装在距离地面 500 毫米的高度,传感器位于侧柱顶部,用于检测门帘是否正常运行

门柱和信号灯上的光眼

门柱和信号灯上的光眼

AISI304不锈钢轴

AISI304不锈钢轴

AISI304 不锈钢控制单元外壳

AISI304 不锈钢控制单元外壳

电机和轨道加热

电机和轨道加热

关闭时,如果底边保护接触到障碍物,信号会从传感器通过无线电通道传输到控制单元以打开门;停电时,门会通过配重自动打开

关闭时,如果底边保护接触到障碍物,信号会从传感器通过无线电通道传输到控制单元以打开门;停电时,门会通过配重自动打开

Technical description
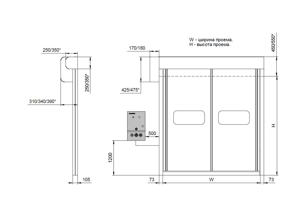
尺寸表
结构
标准结构方案
技术规格
产品使用条件
包装
参数
数值
洞口宽度
1 200 - 3 800
洞口高度
1 700 - 3 800
门楣空间
从450
侧部空间
从225
  1. 1.电机
  2. 轴箱
  3. 门柱
  4. 透视窗
  5. 支架
  6. 轨道
  7. 底部保护
  8. 光眼
  9. 控制模块

带 DOORHAN 电控系统的门的整体视图(电机左置/电机右置)

带 DOORHAN 电控系统的门的整体视图(电机左置/电机右置)

简写符号, 参数名称 计算公式
B, 毫米门楣宽度 1 600 - 3 800
H, 毫米洞口高度 1 700 - 3 800
带 DOORHAN SERVO电控系统的门的整体视图(电机左置/电机右置)

带 DOORHAN SERVO电控系统的门的整体视图(电机左置/电机右置)

简写符号, 参数名称 计算公式
B, 毫米门楣宽度 1 600 - 3 800
H, 毫米洞口高度 1 700 - 3 800
参数 数值 备注
抗风等级,km/h CLASS2 (至 90) 适用于最大 3,800 × 3,800 mm 的门
抗风等级,km/h CLASS3 (至 120) 适用于最大 3,000 × 3,000 mm 的门
开启速度,m/s 2,0 适用于最大 3,000 × 3,000 mm 的门
开启速度,m/s 1,5 适用于最大 3,800 × 3,800 mm 的门
关闭速度,m/s 0,5
工作温度范围,°C 从 0 到 +50
功率,W 1 500
IP防护等级 IP54 终端位置由编码器跟踪
电源电压,B 220 伏 / 50 赫兹 单相
电源电压,B 380 伏 / 50 赫兹 三相
无故障开启/关闭循环次数,不小于 1 500 000 根据操作条件

SpeedRoll系列快速门门体抗风性能指门体在关闭状态下的抗风性能。 PVC软质快速门不可在强风或瞬时风力较强的环境使用,这些环境包括:走廊通道式风口建筑;海边或者山区等强风地带;多层地下停车场,或拥有多个出入口的停车场;拥有强通风口的生产区域;拥有多个门洞的建筑物且各门洞间有强对流气流产生的环境,如使用现场满足以上一个或多个条件,建议使用堆积式快速门SDF系列货硬质快卷门HSSD系列产品。

为确保快速门可靠、不间断运行,建议定期进行技术检查和维护。

使用曲柄手动打开和关闭门。

请勿使门受到撞击或干扰其自由打开和关闭。

请勿弄脏 PVC 帘布。

快速门启闭时严禁站在洞口内,以免受伤。

打开和关闭门时,请确保门洞处没有异物。

轨道中帘布的自我修复功能用于在紧急情况下操作(在与车辆发生无意碰撞的情况下);而不是设计用于在故意和系统地从轨道上剥离帘布的情况下工作。这意味着即使门帘从轨道中脱轨(比如,被叉车撞掉),自我修复系统在下一个运行循环中会自动引导门帘复轨。如果碰撞超过帘布和系统元件各个部件的强度参数,则无法确保该功能的功能,例如,在与门帘高速碰撞的情况下,尖锐的碰撞异物、叉车升起的货叉对门上部的撞击等等。

木质包装 包装特点
包装物 木箱包装,纸板垫在节点之间并用扎带固定
长度,mm 取决于门配件长度
宽度,mm 从640 到705
高度,毫米 从480 到730
附加说明 print

DoorHan 集团使用液压起重机或叉车(叉车高度至少为 2 m)将快速门装到卡车上。买方或安装商必须提供相同的设备来移动包装好快速门。货叉应该在制造商提供的木托盘下面,并从另一边伸出来。当使用起重机或其他起重设备时,建议使用合适容量的吊索。

Installation
安装方法
建筑工地准备
快速门安装
快速门安装
  1. 所有测量均在室内进行。每个测量值必须至少在三个点处测量(两段位置和中心位置)
  2. H–门洞高度(从地板到洞口顶部的距离)
  3. B–门洞宽度(洞口左边缘到右边缘的距离)
  4. h —门楣(从洞口顶部到天花板的距离)。
  5. b1/b2—左/右侧空间(洞口相应边缘到障碍物的距离)
  6. 测量H、B时,取最大值作为最终尺寸;测量h、b1、b2时,取最小值。
Documentation
使用说明
证书和认证
图纸

快速门 SPEEDROLL SDF(用于食品行业)

GfA控制单元

BMP控制单元

DoorHan的控制单元

DoorHan SERVO 的控制单元

合格证书(快速门)

快速门相关认证

合格证书(控制单元)

快速门SPEEDROLL SDF(侧置电机)

快速门SPEEDROLL SDF安装图

保修义务 print

自购买之日起,DoorHan 公司生产的快速门将向买方提供 1 年质保(零售订单)/2 年质保(经销商订单)。

新品
DoorHan 的电机 (220/380 伏)。

DoorHan 的电机 (220/380 伏)。

设计
不锈钢
门框由 AISI 304 不锈钢制成
门框由 AISI 304 不锈钢制成
门框/门颜色
RAL 9010 (白色)
RAL 9010 (白色)
RAL 5002 (蓝色)
RAL 5002 (蓝色)
RAL 6026 (绿色)
RAL 6026 (绿色)
RAL 9006 (银色)
RAL 9006 (银色)
RAL 1003 (黄色)
RAL 1003 (黄色)
RAL 3002 (红色)
RAL 3002 (红色)
RAL 2004 (橙色)
RAL 2004 (橙色)
Equipment
基本配置
AISI304 不锈钢制成的支架和外罩

AISI304 不锈钢制成的支架和外罩

镀锌钢轴,直径 90/130 mm

镀锌钢轴,直径 90/130 mm

挤压聚乙烯导轨

挤压聚乙烯导轨

由密度为 900–1,200 克/平方米的不透明强化 PVC 制成的门帘

由密度为 900–1,200 克/平方米的不透明强化 PVC 制成的门帘

带变频器的控制单元位于控制箱内,300 × 400 × 150 mm;防护等级-IP54

带变频器的控制单元位于控制箱内,300 × 400 × 150 mm;防护等级-IP54

光眼安装在距离地面 500 毫米的高度,传感器位于侧柱顶部,用于检测门帘是否正常运行

光眼安装在距离地面 500 毫米的高度,传感器位于侧柱顶部,用于检测门帘是否正常运行

门柱和信号灯上的光眼

门柱和信号灯上的光眼

附加配置
AISI304不锈钢轴

AISI304不锈钢轴

AISI304 不锈钢控制单元外壳

AISI304 不锈钢控制单元外壳

电机和轨道加热

电机和轨道加热

关闭时,如果底边保护接触到障碍物,信号会从传感器通过无线电通道传输到控制单元以打开门;停电时,门会通过配重自动打开

关闭时,如果底边保护接触到障碍物,信号会从传感器通过无线电通道传输到控制单元以打开门;停电时,门会通过配重自动打开

Technical description
尺寸表
参数
数值
洞口宽度
1 200 - 3 800
洞口高度
1 700 - 3 800
门楣空间
从450
侧部空间
从225
结构
  1. 1.电机
  2. 轴箱
  3. 门柱
  4. 透视窗
  5. 支架
  6. 轨道
  7. 底部保护
  8. 光眼
  9. 控制模块
标准结构方案

带 DOORHAN 电控系统的门的整体视图(电机左置/电机右置)

带 DOORHAN 电控系统的门的整体视图(电机左置/电机右置)

简写符号, 参数名称 计算公式
B, 毫米门楣宽度 1 600 - 3 800
H, 毫米洞口高度 1 700 - 3 800
带 DOORHAN SERVO电控系统的门的整体视图(电机左置/电机右置)

带 DOORHAN SERVO电控系统的门的整体视图(电机左置/电机右置)

简写符号, 参数名称 计算公式
B, 毫米门楣宽度 1 600 - 3 800
H, 毫米洞口高度 1 700 - 3 800
技术规格
参数 数值 备注
抗风等级,km/h CLASS2 (至 90) 适用于最大 3,800 × 3,800 mm 的门
抗风等级,km/h CLASS3 (至 120) 适用于最大 3,000 × 3,000 mm 的门
开启速度,m/s 2,0 适用于最大 3,000 × 3,000 mm 的门
开启速度,m/s 1,5 适用于最大 3,800 × 3,800 mm 的门
关闭速度,m/s 0,5
工作温度范围,°C 从 0 到 +50
功率,W 1 500
IP防护等级 IP54 终端位置由编码器跟踪
电源电压,B 220 伏 / 50 赫兹 单相
电源电压,B 380 伏 / 50 赫兹 三相
无故障开启/关闭循环次数,不小于 1 500 000 根据操作条件
产品使用条件

SpeedRoll系列快速门门体抗风性能指门体在关闭状态下的抗风性能。 PVC软质快速门不可在强风或瞬时风力较强的环境使用,这些环境包括:走廊通道式风口建筑;海边或者山区等强风地带;多层地下停车场,或拥有多个出入口的停车场;拥有强通风口的生产区域;拥有多个门洞的建筑物且各门洞间有强对流气流产生的环境,如使用现场满足以上一个或多个条件,建议使用堆积式快速门SDF系列货硬质快卷门HSSD系列产品。

为确保快速门可靠、不间断运行,建议定期进行技术检查和维护。

使用曲柄手动打开和关闭门。

请勿使门受到撞击或干扰其自由打开和关闭。

请勿弄脏 PVC 帘布。

快速门启闭时严禁站在洞口内,以免受伤。

打开和关闭门时,请确保门洞处没有异物。

轨道中帘布的自我修复功能用于在紧急情况下操作(在与车辆发生无意碰撞的情况下);而不是设计用于在故意和系统地从轨道上剥离帘布的情况下工作。这意味着即使门帘从轨道中脱轨(比如,被叉车撞掉),自我修复系统在下一个运行循环中会自动引导门帘复轨。如果碰撞超过帘布和系统元件各个部件的强度参数,则无法确保该功能的功能,例如,在与门帘高速碰撞的情况下,尖锐的碰撞异物、叉车升起的货叉对门上部的撞击等等。

包装
木质包装 包装特点
包装物 木箱包装,纸板垫在节点之间并用扎带固定
长度,mm 取决于门配件长度
宽度,mm 从640 到705
高度,毫米 从480 到730
附加说明

DoorHan 集团使用液压起重机或叉车(叉车高度至少为 2 m)将快速门装到卡车上。买方或安装商必须提供相同的设备来移动包装好快速门。货叉应该在制造商提供的木托盘下面,并从另一边伸出来。当使用起重机或其他起重设备时,建议使用合适容量的吊索。

Installation
安装方法
快速门安装
快速门安装
建筑工地准备
  1. 所有测量均在室内进行。每个测量值必须至少在三个点处测量(两段位置和中心位置)
  2. H–门洞高度(从地板到洞口顶部的距离)
  3. B–门洞宽度(洞口左边缘到右边缘的距离)
  4. h —门楣(从洞口顶部到天花板的距离)。
  5. b1/b2—左/右侧空间(洞口相应边缘到障碍物的距离)
  6. 测量H、B时,取最大值作为最终尺寸;测量h、b1、b2时,取最小值。
保修义务

自购买之日起,DoorHan 公司生产的快速门将向买方提供 1 年质保(零售订单)/2 年质保(经销商订单)。

Documentation
使用说明

快速门 SPEEDROLL SDF(用于食品行业)

GfA控制单元

BMP控制单元

DoorHan的控制单元

DoorHan SERVO 的控制单元

证书和认证

合格证书(快速门)

快速门相关认证

合格证书(控制单元)

图纸

快速门SPEEDROLL SDF(侧置电机)

快速门SPEEDROLL SDF安装图

结算
公司的经理将通过电话回答所有问题: