Catalog
Catalog
工业设备
高速快卷门
FHSD 系列冷库快速门

FHSD 系列冷库快速门

FHSD系列高速门专为冷冻室通道设计,适用于人员和设备频繁进出的场所。
应用范围:
冷冻仓库
缓冲间
优势
抗冻性能
在冷冻仓库环境下稳定运行,适用于低至 -30°C 的温度。
保温门帘
门帘由两层高强度纤维聚氨酯涂层帆布制成,确保优异的隔热性能。
密封性
独特的加热及密封系统,提高门体的气密性。
自修复功能
在意外撞击后,门帘可在下一次关闭循环时自动复位至导轨内。
自动化选项
采用自研高可靠性自动化系统,确保稳定运行。
可选配置
支持安装多种额外设备,以满足不同需求。
抗冻性能
在冷冻仓库环境下稳定运行,适用于低至 -30°C 的温度。
保温门帘
门帘由两层高强度纤维聚氨酯涂层帆布制成,确保优异的隔热性能。
密封性
独特的加热及密封系统,提高门体的气密性。
自修复功能
在意外撞击后,门帘可在下一次关闭循环时自动复位至导轨内。
自动化选项
采用自研高可靠性自动化系统,确保稳定运行。
可选配置
支持安装多种额外设备,以满足不同需求。
设计
框架颜色
门帘颜色
不锈钢(驱动罩、卷轴箱、配重罩)
不锈钢(驱动罩、卷轴箱、配重罩)
铝制立柱,黑色喷涂。
铝制立柱,黑色喷涂。
RAL 5002(蓝色)
RAL 5002(蓝色)
Equipment
基本配置
附加配置
驱动轴和卷帘轴,带自恢复机制。

驱动轴和卷帘轴,带自恢复机制。

带加热的导轨支架。

带加热的导轨支架。

由两层加固纤维布和聚氨酯涂层制成的门帘,内部填充保温棉隔热材料。

由两层加固纤维布和聚氨酯涂层制成的门帘,内部填充保温棉隔热材料。

不锈钢控制单元外壳:尺寸 - 250 × 490 × 140 mm;防护等级 - IP 54 电源电压 - 220-240 V / 50-60 Hz;功率 - 1.5 kW;防护等级 – IP65。

不锈钢控制单元外壳:尺寸 - 250 × 490 × 140 mm;防护等级 - IP 54 电源电压 - 220-240 V / 50-60 Hz;功率 - 1.5 kW;防护等级 – IP65。

光电传感器安装在距地面500 mm的高度(可选配附加光电传感器)。

光电传感器安装在距地面500 mm的高度(可选配附加光电传感器)。

带加热电缆的隔热框架起到热屏障的作用。

带加热电缆的隔热框架起到热屏障的作用。

电机 IP65

电机 IP65

空气幕(双面风扇)

空气幕(双面风扇)

控制单元加热。

控制单元加热。

Technical description
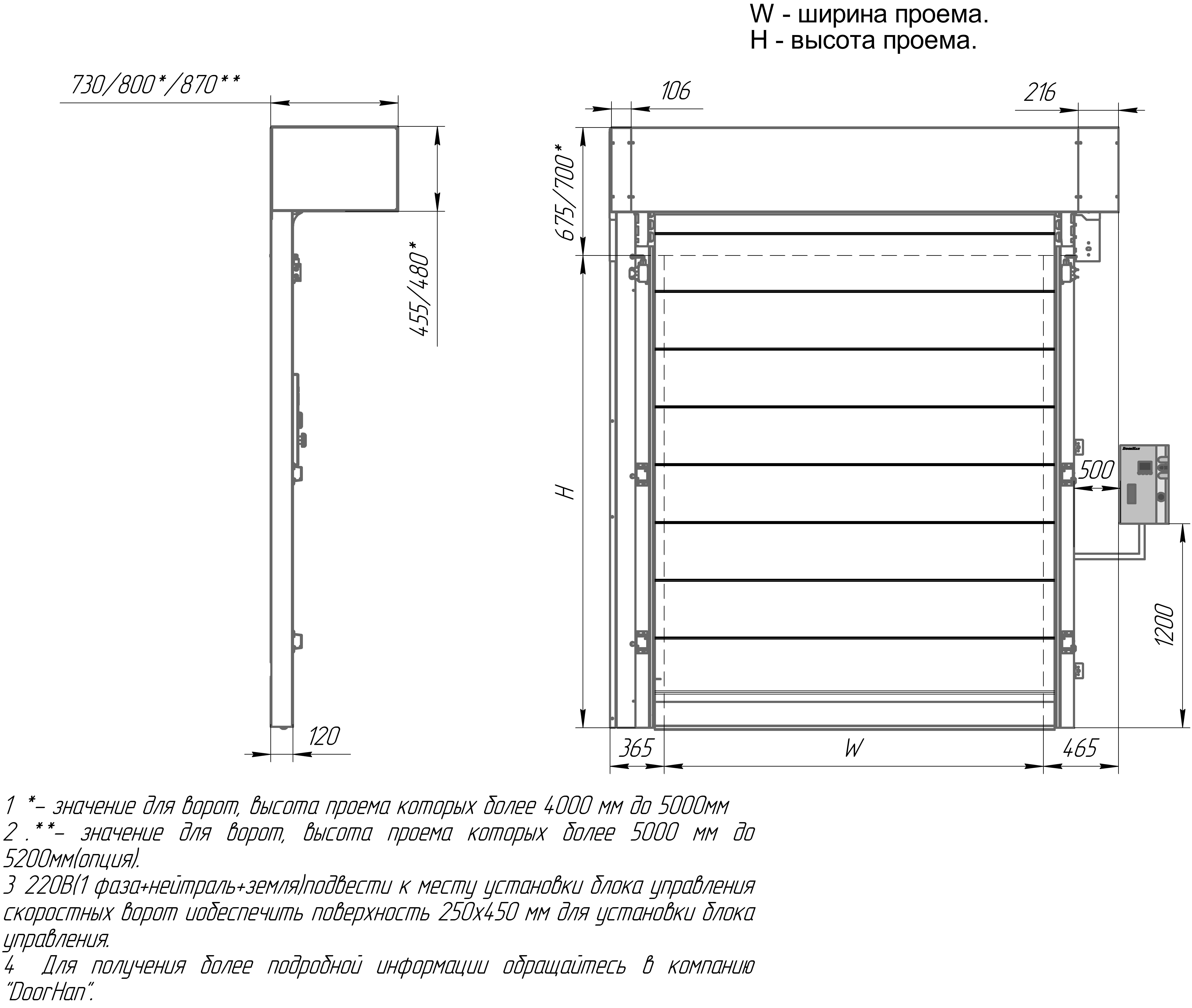
尺寸表
结构
标准结构方案
技术规格
产品使用条件
包装
参数
数值
洞口宽度
1400–3370
洞口高度
1800–5000(可选5200)
门楣空间
676+50, 697+50
侧部空间
365+50/465+50(无驱动侧/有驱动侧)
箱体深度,mm
733, 803, 864
  1. 传动轴
  2. 驱动装置
  3. 驱动装置外壳
  4. 轴箱
  5. 带帘布导轨的立柱
  6. 带加热电缆的隔热框架
  7. 保护外壳内的配重
  8. 聚氨酯双层帘布
  9. 光电传感器
  10. 不锈钢外壳控制箱

侧面驱动。

侧面驱动。

简写符号, 参数名称 计算公式
B, 毫米门楣宽度 1400–3370
H, 毫米洞口高度 1800–5000(选项5200)
参数 数值 备注
开启速度,m/s 0.8–1.6 米/秒 根据门的尺寸可调节
关闭速度,m/s 最大 0.6 可调节
工作温度范围,°C -30…+50 °C
密封性 接缝处的单位长度空气渗透量为 5.4 m³/(m·h),单位面积的空气渗透量为 8.2 m³/(m·h)
抗风压性能,帕 额定正压 400 帕;额定负压 600 帕
热导率,瓦/(米·K) 3.0 瓦/(m²·K)
功率,W 1 500
IP防护等级 IP65 限位位置由编码器监控
电源电压,B 220 伏 / 50 Hz 单相
无故障开启/关闭循环次数,不小于 750 000
安全元件 门符合欧洲标准 EN 13241 CN 一对光电传感器,安装在离地面 500 毫米的高度; 闪光指示器;警报器(可选)。

为了确保门的可靠和无故障运行,建议定期进行技术检查和维护。

手动开启和关闭门是通过手柄进行的。

请保持PU门帘及导轨的洁净。

在门的开启和关闭过程中,禁止站在门框内,以避免受伤。

在门的开启和关闭过程中,确保门框内没有异物。

门帘在导轨中的自恢复功能旨在应对紧急情况下的工作,例如意外的车辆碰撞。此功能不适用于有意或频繁地将门帘从导轨中撞出的情况。该功能的有效性取决于门帘上安装的“拉链”是否能从导轨中脱离。在出现超过门帘和系统元件的强度参数的冲击(例如高速碰撞、尖锐物体碰撞、叉车货叉撞击上部等)时,功能无法正常工作。门帘在撞击后会自动在随后的关闭循环中回到导轨中。

木质包装 包装特点
包装物 气泡膜,泡沫塑料,木托盘,木条
长度,mm 取决于门的组成部分的长度
宽度,mm 取决于门的组成部分的宽度
高度,毫米 取决于门的组成部分的高度
附加说明 print

DoorHan集团通过液压起重机或叉车(叉臂长度不小于2米)将门装载到货车上。买方或安装人员应提供类似的设备来搬运包装好的门。叉臂应插入由制造商提供的木托盘下方,并从另一侧伸出。使用起重机或其他起重设备时,建议使用符合承载能力要求的吊带。

Installation
安装方法
建筑工地准备
外挂式安装高速门
外挂式安装高速门
  1. 所有测量都在室内进行。每个尺寸的测量至少应在三个位置(最远两端和中间)进行。
  2. B – 门洞宽度(从门洞左边缘到右边缘的距离)。
  3. H – 门洞高度(从地面到门洞顶部的距离)。
  4. h – 门楣高度(从门洞顶部到天花板的距离)。
  5. b1/b2 – 左右侧边距(从门洞相应边缘到障碍物的距离)。
  6. L – 门上部深度(从墙壁到障碍物的距离)。
  7. 在测量H、B和L时,最终尺寸取最大值;在测量h、b1和b2时,最终尺寸取最小值。
Documentation
使用说明
证书和认证
图纸

快速卷帘门系列SPEEDROLL 2ST(推拉式)

DOORHAN SERVO控制单元

推荐安装方案,缓冲室

合格证书(快速门)

冷库快速门的出厂合格证

合格证书(控制单元)

冷库快速门FHSD

冷库快速门FHSD的安装示意图

保修义务 print

购买者从购买之日起可获得DoorHan公司生产的速卷门的保修期一年。

新品
DOORHAN SERVO 驱动器 (220V)

DOORHAN SERVO 驱动器 (220V)

设计
框架颜色
不锈钢(驱动罩、卷轴箱、配重罩)
不锈钢(驱动罩、卷轴箱、配重罩)
铝制立柱,黑色喷涂。
铝制立柱,黑色喷涂。
门帘颜色
RAL 5002(蓝色)
RAL 5002(蓝色)
Equipment
基本配置
驱动轴和卷帘轴,带自恢复机制。

驱动轴和卷帘轴,带自恢复机制。

带加热的导轨支架。

带加热的导轨支架。

由两层加固纤维布和聚氨酯涂层制成的门帘,内部填充保温棉隔热材料。

由两层加固纤维布和聚氨酯涂层制成的门帘,内部填充保温棉隔热材料。

不锈钢控制单元外壳:尺寸 - 250 × 490 × 140 mm;防护等级 - IP 54 电源电压 - 220-240 V / 50-60 Hz;功率 - 1.5 kW;防护等级 – IP65。

不锈钢控制单元外壳:尺寸 - 250 × 490 × 140 mm;防护等级 - IP 54 电源电压 - 220-240 V / 50-60 Hz;功率 - 1.5 kW;防护等级 – IP65。

光电传感器安装在距地面500 mm的高度(可选配附加光电传感器)。

光电传感器安装在距地面500 mm的高度(可选配附加光电传感器)。

带加热电缆的隔热框架起到热屏障的作用。

带加热电缆的隔热框架起到热屏障的作用。

附加配置
电机 IP65

电机 IP65

空气幕(双面风扇)

空气幕(双面风扇)

控制单元加热。

控制单元加热。

Technical description
尺寸表
参数
数值
洞口宽度
1400–3370
洞口高度
1800–5000(可选5200)
门楣空间
676+50, 697+50
侧部空间
365+50/465+50(无驱动侧/有驱动侧)
箱体深度,mm
733, 803, 864
结构
  1. 传动轴
  2. 驱动装置
  3. 驱动装置外壳
  4. 轴箱
  5. 带帘布导轨的立柱
  6. 带加热电缆的隔热框架
  7. 保护外壳内的配重
  8. 聚氨酯双层帘布
  9. 光电传感器
  10. 不锈钢外壳控制箱
标准结构方案

侧面驱动。

侧面驱动。

简写符号, 参数名称 计算公式
B, 毫米门楣宽度 1400–3370
H, 毫米洞口高度 1800–5000(选项5200)
技术规格
参数 数值 备注
开启速度,m/s 0.8–1.6 米/秒 根据门的尺寸可调节
关闭速度,m/s 最大 0.6 可调节
工作温度范围,°C -30…+50 °C
密封性 接缝处的单位长度空气渗透量为 5.4 m³/(m·h),单位面积的空气渗透量为 8.2 m³/(m·h)
抗风压性能,帕 额定正压 400 帕;额定负压 600 帕
热导率,瓦/(米·K) 3.0 瓦/(m²·K)
功率,W 1 500
IP防护等级 IP65 限位位置由编码器监控
电源电压,B 220 伏 / 50 Hz 单相
无故障开启/关闭循环次数,不小于 750 000
安全元件 门符合欧洲标准 EN 13241 CN 一对光电传感器,安装在离地面 500 毫米的高度; 闪光指示器;警报器(可选)。
产品使用条件

为了确保门的可靠和无故障运行,建议定期进行技术检查和维护。

手动开启和关闭门是通过手柄进行的。

请保持PU门帘及导轨的洁净。

在门的开启和关闭过程中,禁止站在门框内,以避免受伤。

在门的开启和关闭过程中,确保门框内没有异物。

门帘在导轨中的自恢复功能旨在应对紧急情况下的工作,例如意外的车辆碰撞。此功能不适用于有意或频繁地将门帘从导轨中撞出的情况。该功能的有效性取决于门帘上安装的“拉链”是否能从导轨中脱离。在出现超过门帘和系统元件的强度参数的冲击(例如高速碰撞、尖锐物体碰撞、叉车货叉撞击上部等)时,功能无法正常工作。门帘在撞击后会自动在随后的关闭循环中回到导轨中。

包装
木质包装 包装特点
包装物 气泡膜,泡沫塑料,木托盘,木条
长度,mm 取决于门的组成部分的长度
宽度,mm 取决于门的组成部分的宽度
高度,毫米 取决于门的组成部分的高度
附加说明

DoorHan集团通过液压起重机或叉车(叉臂长度不小于2米)将门装载到货车上。买方或安装人员应提供类似的设备来搬运包装好的门。叉臂应插入由制造商提供的木托盘下方,并从另一侧伸出。使用起重机或其他起重设备时,建议使用符合承载能力要求的吊带。

Installation
安装方法
外挂式安装高速门
外挂式安装高速门
建筑工地准备
  1. 所有测量都在室内进行。每个尺寸的测量至少应在三个位置(最远两端和中间)进行。
  2. B – 门洞宽度(从门洞左边缘到右边缘的距离)。
  3. H – 门洞高度(从地面到门洞顶部的距离)。
  4. h – 门楣高度(从门洞顶部到天花板的距离)。
  5. b1/b2 – 左右侧边距(从门洞相应边缘到障碍物的距离)。
  6. L – 门上部深度(从墙壁到障碍物的距离)。
  7. 在测量H、B和L时,最终尺寸取最大值;在测量h、b1和b2时,最终尺寸取最小值。
保修义务

购买者从购买之日起可获得DoorHan公司生产的速卷门的保修期一年。

Documentation
使用说明

快速卷帘门系列SPEEDROLL 2ST(推拉式)

DOORHAN SERVO控制单元

推荐安装方案,缓冲室

证书和认证

合格证书(快速门)

冷库快速门的出厂合格证

合格证书(控制单元)

图纸

冷库快速门FHSD

冷库快速门FHSD的安装示意图

结算
公司的经理将通过电话回答所有问题: